飯田橋駅の賃貸物件一覧
建物 15 棟
部屋 33 室
表示棟数:
- 1
- 2
プライムゲート飯田橋 【05月13日更新】
ブリリア神楽坂アイディー 【05月13日更新】
ラ・トゥール神楽坂 【05月13日更新】
フルハウス飯田橋 【05月13日更新】
ルミナス神楽坂 【05月13日更新】
デュオフラッツ飯田橋 【05月13日更新】
ザ・パークハビオ飯田橋プレイス 【05月13日更新】
仲介手数料無料
ペット相談
礼金ゼロ
初期費用クレジットカード決済可能

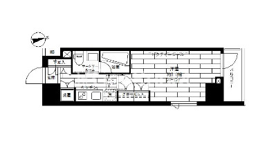
| 間取り図 | 階数 | 間取り | 面積 | 賃料 | 管理費 | 敷金 | 礼金 | お気に入り | お問合わせ |
|---|---|---|---|---|---|---|---|---|---|
| 8階 | 1LDK | 40.21m2 | 25.3万円 | 15,000円 | 1.0ヶ月 | 0.0ヶ月 |
|
お問合わせ |
プライムアーバン飯田橋 【05月13日更新】
建物
15棟中 1~10棟表示
- 1
- 2
お気に入りに追加しました
お気に入りを解除しました
検索条件を保存しました
会社情報
高級賃貸Pay
(株式会社エスティリンク)
営業時間:10:00~19:00
定休日:(年中無休)
おすすめの物件
-
更新 05/13
- ブリリアタワー浜離宮
- 空室:8 部屋
- 面積:25.13m2〜105.77m2
JR山手線
『浜松町駅』徒歩5分
間取り:1DK〜3LDK
賃料:15.0万円〜100.0万円
-
更新 05/13
- カテリーナ三田タワースイート
- 空室:5 部屋
- 面積:34.05m2〜66.53m2
都営三田線
『三田駅』徒歩2分
間取り:1K〜2LDK
賃料:18.0万円〜40.0万円
-
更新 05/13
- パークコート六本木ヒルトップ
- 空室:6 部屋
- 面積:50.52m2〜102.39m2
東京メトロ南北線
『溜池山王駅』徒歩9分
間取り:1LDK〜3LDK
賃料:44.0万円〜135.0万円
-
更新 05/13
- ジュールA
- 空室:1 部屋
- 面積:49.78m2
都営大江戸線
『麻布十番駅』徒歩1分
間取り:1K
賃料:34.5万円
-
更新 05/13
- ハーモニーレジデンス田町
- 空室:2 部屋
- 面積:25.37m2〜25.55m2
JR山手線
『田町駅』徒歩8分
間取り:1K
賃料:13.8万円