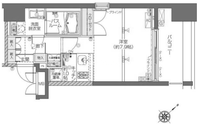
プライムアーバン洗足 【05月02日更新】
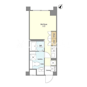
クレストコート大岡山 【05月02日更新】
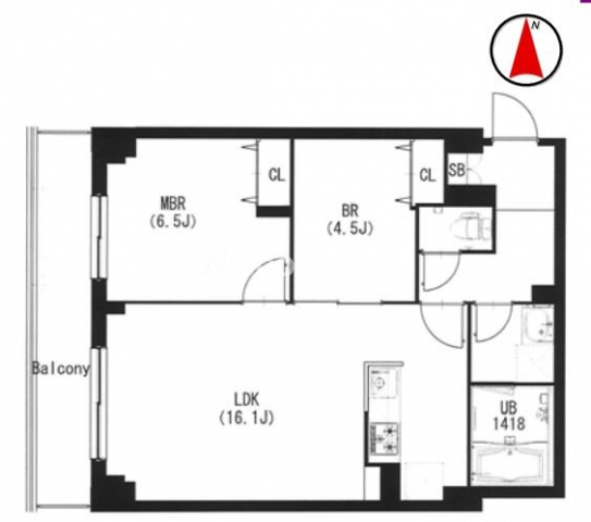
ブリックレジデンス目黒本町 【05月02日更新】
お気に入りに追加しました
お気に入りを解除しました
検索条件を保存しました
会社情報
高級賃貸Pay
(株式会社エスティリンク)
営業時間:10:00~19:00
定休日:(年中無休)
おすすめの物件
-
更新 05/02
- 麻布台ヒルズレジデンス
- 空室:10 部屋
- 面積:38.06m2〜105.78m2
東京メトロ南北線
『六本木一丁目駅』徒歩5分
間取り:1R〜3LDK
賃料:45.5万円〜160.0万円
-
更新 05/02
- フォレストテラス鳥居坂
- 空室:1 部屋
- 面積:150.49m2
東京メトロ南北線
『麻布十番駅』徒歩4分
間取り:3LDK
賃料:130.0万円
-
更新 05/02
- プラウドフラット白金高輪
- 空室:1 部屋
- 面積:20.27m2
東京メトロ南北線
『白金高輪駅』徒歩5分
間取り:1K
賃料:12.9万円
-
更新 05/02
- レグノ・プレミア高輪
- 空室:1 部屋
- 面積:48.68m2
JR山手線
『品川駅』徒歩9分
間取り:1LDK
賃料:24.5万円
-
更新 05/02
- ウォーク赤坂
- 空室:1 部屋
- 面積:103.60m2
東京メトロ千代田線
『赤坂駅』徒歩6分
間取り:2LDK
賃料:75.0万円
