トレステージ目黒 【04月15日更新】
初期費用クレジットカード決済可能

| 間取り図 | 階数 | 間取り | 面積 | 賃料 | 管理費 | 敷金 | 礼金 | お気に入り | お問合わせ |
|---|---|---|---|---|---|---|---|---|---|
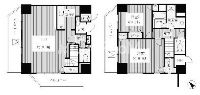
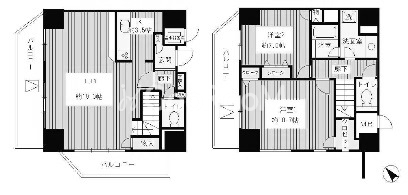
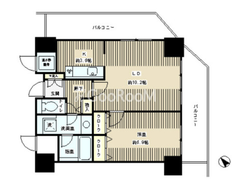
| 2階 | 1LDK | 57.4m2 | 26.5万円 | - | 1.0ヶ月 | 1.0ヶ月 |
|
お問合わせ | |
| 4階 | 1LDK | 52.25m2 | 25.0万円 | - | 1.0ヶ月 | 1.0ヶ月 |
|
お問合わせ | |
| 4階 | 1LDK | 50.35m2 | 24.9万円 | - | 1.0ヶ月 | 1.0ヶ月 |
|
お問合わせ |
Outline トレステージ目黒の建物詳細
| 住所 | 東京都目黒区下目黒2-22-11 Map | ||
| 交通 | |||
| 築年月 | 2004年2月 | 総戸数 | 96戸 |
| 階建 | 18階建 (地下2階) | 種別/構造 | 鉄骨 |
| 賃料 | 243,000円 ~ 275,000円 | 共益費/管理費 | 0円 |
| 間取り | 1LDK | 専有面積 | 46.31m2 ~ 57.40m2 |
| 特長 | |||
| 設備 | |||
| 備考 |
※こちらのお部屋情報の他にも空き部屋・空き予定のお部屋もございますので、メールやお電話にてお問い合わせください。 ※掲載している物件がご成約している場合もございますのでご了承ください。 ※掲載詳細に相違がある場合は、弊社スタッフの情報を優先させていただきます。 ※ペット相談可の物件やSOHO利用については、お部屋ごとに禁止とされている場合もございますので御注意下さい。お客様に代わって弊社スタッフが確認と交渉を行います。 ※駐車場、駐輪場については、メールやお電話にてお問い合わせください。お客様からのお問い合わせをお待ちしています。 |
||
| URL | 「トレステージ目黒」の詳細はこちら | ||
| 関連リンク | |||
トレステージ目黒のご案内
「トレステージ目黒」は東京都目黒区下目黒2-22-11にある2004年築の18階建のマンションです。
最寄りの駅は目黒駅になります。
その他、不動前駅 が利用可能です。
04月15日現在、空室が7室となっております。
24hセキュリティ、宅配ボックス、オートロックなどの設備がございます。各お部屋にも様々な特徴がございますので、是非ご覧になってください。
また、初期費用をクレジットカードでお支払いいただくことも可能です。
内見の申し込みや物件・部屋の設備でご不明な点がございましたら、是非お問い合わせくださいませ。
都心エリア高級マンションのお部屋探しは、「高級賃貸Pay」へお任せください。
【会社概要 / お問い合わせ先】
高級賃貸Pay (株式会社エスティリンク)
TEL:03-5468-8899
営業時間:10:00~19:00 定休日:(年中無休)
※地図上に表示される物件のアイコンは付近住所に所在することを表すものであり、実際の物件所在地とは異なる場合がございます。
-
更新 04/15
- クリエイト紀尾井町
- 空室:2 部屋
- 面積:22.16m2〜30.20m2
東京メトロ半蔵門線
『永田町駅』徒歩3分
間取り:1R
賃料:14.0万円
-
更新 04/15
- ファミールグラン銀座4丁目オーセンティア
- 空室:1 部屋
- 面積:31.56m2
東京メトロ銀座線
『銀座駅』徒歩5分
間取り:1R
賃料:17.2万円
-
更新 04/15
- コンフォリア目黒長者丸
- 空室:4 部屋
- 面積:34.37m2〜42.23m2
JR山手線
『目黒駅』徒歩7分
間取り:1R〜1LDK
賃料:16.9万円〜23.8万円
-
更新 04/15
- パークキューブ銀座イースト
- 空室:3 部屋
- 面積:40.08m2〜42.91m2
東京メトロ有楽町線
『新富町駅』徒歩5分
間取り:1LDK
賃料:19.3万円〜23.8万円
-
更新 04/15
- ルクレ新川レジデンス
- 空室:3 部屋
- 面積:40.53m2〜43.10m2
東京メトロ東西線
『茅場町駅』徒歩5分
間取り:1DK〜1LDK
賃料:18.5万円〜19.5万円
-
更新 04/15
- レジディア新中野
- 空室:1 部屋
- 面積:21.00m2
東京メトロ丸ノ内線
『新中野駅』徒歩6分
間取り:1K
賃料:10.0万円
-
更新 04/15
- レジディア麻布十番Ⅱ
- 空室:1 部屋
- 面積:25.27m2
都営大江戸線
『麻布十番駅』徒歩6分
間取り:1R
賃料:15.8万円
-
更新 04/15
- ドゥーエ西麻布Ⅰ・Ⅱ
- 空室:2 部屋
- 面積:67.18m2〜88.36m2
東京メトロ日比谷線
『六本木駅』徒歩12分
間取り:1LDK〜2LDK
賃料:42.0万円〜63.0万円
-
更新 04/15
- クリオレミントンハウス文京播磨坂
- 空室:1 部屋
- 面積:104.10m2
東京メトロ丸ノ内線
『茗荷谷駅』徒歩4分
間取り:1SLDK
賃料:53.0万円
-
更新 04/15
- グランシャトレ目白台
- 空室:1 部屋
- 面積:75.60m2
JR山手線
『目白駅』徒歩18分
間取り:3LDK
賃料:27.0万円
-
更新 04/15
- ラグジュアリーアパートメント文京千石♯01
- 空室:1 部屋
- 面積:37.64m2
都営三田線
『千石駅』徒歩2分
間取り:1LDK
賃料:14.5万円
-
更新 04/15
- レジディア御茶ノ水
- 空室:3 部屋
- 面積:33.12m2〜43.85m2
東京メトロ銀座線
『末広町駅』徒歩4分
間取り:1R〜1LDK
賃料:15.8万円〜23.5万円
-
更新 04/15
- アビティグランデ砧
- 空室:1 部屋
- 面積:60.95m2
小田急小田原線
『成城学園前駅』徒歩9分
間取り:2LDK
賃料:22.5万円
-
更新 04/15
- ラティエラ武蔵小杉
- 空室:7 部屋
- 面積:25.31m2〜30.18m2
東急東横線
『武蔵小杉駅』徒歩7分
間取り:1R〜1LDK
賃料:14.2万円〜17.7万円
-
更新 04/15
- ウェリス四ツ谷
- 空室:1 部屋
- 面積:56.19m2
JR中央・総武線
『四ツ谷駅』徒歩10分
間取り:2LDK
賃料:28.0万円
-
更新 04/15
- コンフォリア蒲田
- 空室:2 部屋
- 面積:42.59m2
京急本線
『京急蒲田駅』徒歩3分
間取り:1LDK
賃料:19.5万円〜20.3万円
-
更新 04/15
- クラヴィーア神宮前
- 空室:2 部屋
- 面積:25.39m2〜28.36m2
JR中央・総武線
『千駄ケ谷駅』徒歩9分
間取り:1K
賃料:12.5万円〜14.0万円
-
更新 04/15
- エスティメゾン高円寺
- 空室:2 部屋
- 面積:50.47m2〜55.58m2
JR中央線(快速)
『中野駅』徒歩11分
間取り:1LDK〜2LDK
賃料:23.4万円〜25.5万円
-
更新 04/15
- アイフラット駒込一丁目
- 空室:2 部屋
- 面積:23.58m2〜25.50m2
東京メトロ南北線
『駒込駅』徒歩3分
間取り:1K〜1DK
賃料:14.0万円〜15.0万円
-
更新 04/15
- クリエイト紀尾井町
- 空室:2 部屋
- 面積:22.16m2〜30.20m2
東京メトロ半蔵門線
『永田町駅』徒歩3分
間取り:1R
賃料:14.0万円
-
更新 04/15
- プラウドタワー亀戸クロス
- 空室:1 部屋
- 面積:41.42m2
JR中央・総武線
『亀戸駅』徒歩2分
間取り:1LDK
賃料:22.5万円
-
- シティインデックス三田伊皿子坂
- 空室:1 部屋
- 面積:65.98m2
都営浅草線
『泉岳寺駅』徒歩2分
間取り:1LDK
賃料:30.0万円
-
更新 04/15
- クレヴィア原宿
- 空室:1 部屋
- 面積:71.92m2
東京メトロ副都心線
『北参道駅』徒歩3分
間取り:1LDK
賃料:31.0万円
-
更新 04/15
- 広尾アパートメント
- 空室:3 部屋
- 面積:70.01m2〜81.30m2
東京メトロ日比谷線
『広尾駅』徒歩15分
間取り:1LDK〜1SLDK
賃料:38.3万円〜45.5万円
高級賃貸Pay
(株式会社エスティリンク)
営業時間:10:00~19:00
定休日:(年中無休)
-
更新 04/15
- 白金ザ・スカイ
- 空室:11 部屋
- 面積:24.04m2〜96.13m2
東京メトロ南北線
『白金高輪駅』徒歩3分
間取り:1R〜3LDK
賃料:17.8万円〜96.0万円
-
更新 04/15
- フォンテーヌ芝浦
- 空室:4 部屋
- 面積:26.02m2〜51.30m2
JR山手線
『田町駅』徒歩14分
間取り:1K〜1LDK
賃料:12.7万円〜23.3万円
-
更新 04/15
- アクサス汐留
- 空室:1 部屋
- 面積:22.76m2
JR山手線
『新橋駅』徒歩4分
間取り:1K
賃料:14.2万円
-
更新 04/15
- 麻布台ヒルズレジデンス
- 空室:11 部屋
- 面積:32.68m2〜105.78m2
東京メトロ南北線
『六本木一丁目駅』徒歩5分
間取り:1R〜3LDK
賃料:34.5万円〜160.0万円
-
更新 04/15
- ルーブル泉岳寺前
- 空室:2 部屋
- 面積:25.60m2
京急本線
『泉岳寺駅』徒歩5分
間取り:1K
賃料:12.3万円〜12.5万円
トレステージ目黒は、最寄り駅の「目黒駅」から徒歩で8分になります。また、宅配ボックス、駐輪場、24時間ゴミ置き場、近隣スーパーストアなどがあり利便性が良い物件となっております。
トレステージ目黒は、現在空室が7室となっています。
内見をご検討や物件・お部屋についてご不明な点がございましたら高級賃貸Payまで気軽にお問い合わせください