東京都台東区の賃貸物件一覧
建物 372 棟
部屋 1,244 室
表示棟数:
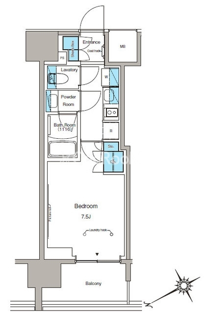
ザ・パークハビオ浅草駒形 【04月18日更新】
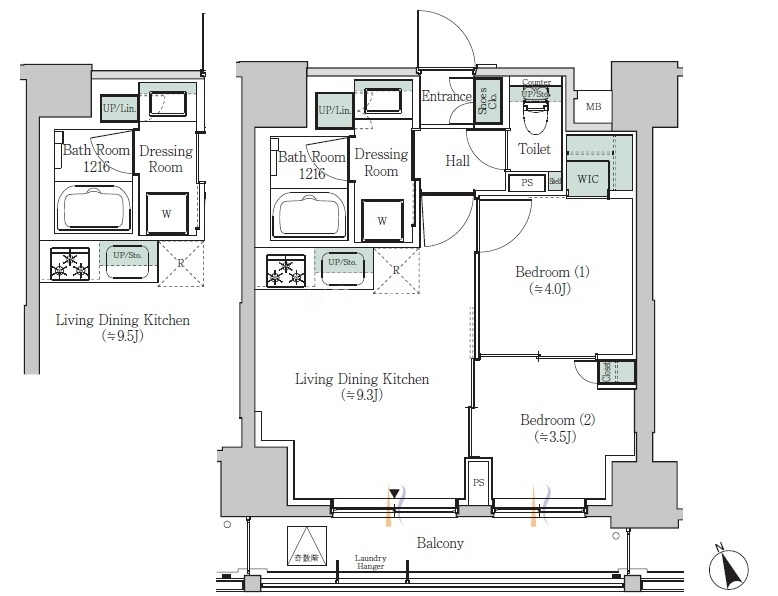
ルフォンプログレ蔵前プレミア 【04月18日更新】
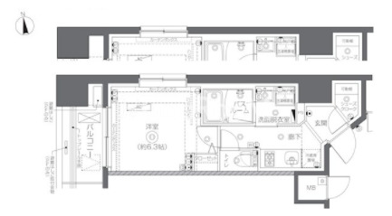
ヴィラクレール浅草 【04月18日更新】
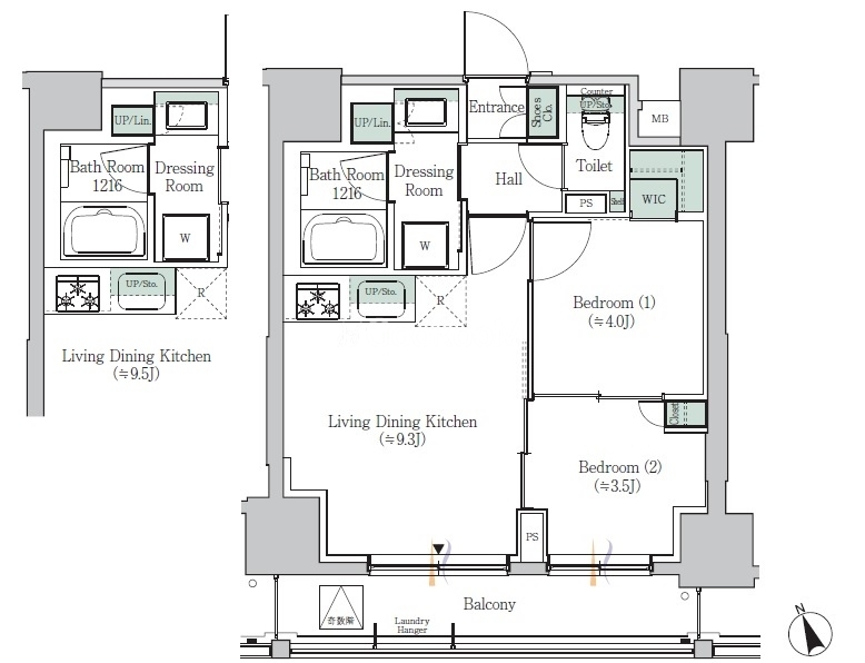
レジディア新御徒町Ⅱ 【04月18日更新】
ブリリアイスト浅草橋 【04月18日更新】
ワンルーフレジデンス浅草橋 【04月18日更新】
ヴィークブライト蔵前 【04月18日更新】
デュオフラッツ上野松が谷 【04月18日更新】
プラウドフラット浅草ディアージュ 【04月18日更新】
お気に入りに追加しました
お気に入りを解除しました
検索条件を保存しました
会社情報
高級賃貸Pay
(株式会社エスティリンク)
営業時間:10:00~19:00
定休日:(年中無休)
おすすめの物件
-
更新 04/18
- フォンテーヌ芝浦
- 空室:4 部屋
- 面積:26.02m2〜51.30m2
JR山手線
『田町駅』徒歩14分
間取り:1K〜1LDK
賃料:12.7万円〜23.3万円
-
更新 04/18
- ラ・トゥール三田
- 空室:7 部屋
- 面積:55.00m2〜103.10m2
都営三田線
『三田駅』徒歩4分
間取り:1R〜2LDK
賃料:45.0万円〜89.0万円
-
更新 04/18
- パークコート浜離宮ザタワー
- 空室:10 部屋
- 面積:30.05m2〜100.80m2
JR山手線
『浜松町駅』徒歩5分
間取り:1R〜3LDK
賃料:21.0万円〜100.0万円
-
更新 04/18
- 麻布台ヒルズレジデンス
- 空室:11 部屋
- 面積:32.68m2〜105.78m2
東京メトロ南北線
『六本木一丁目駅』徒歩5分
間取り:1R〜3LDK
賃料:34.5万円〜160.0万円
-
更新 04/18
- トーシンフェニックス芝アストラーレ
- 空室:3 部屋
- 面積:20.40m2〜20.55m2
JR山手線
『浜松町駅』徒歩7分
間取り:1K
賃料:10.4万円〜12.6万円
