新宿三丁目駅の賃貸物件一覧
建物 17 棟
部屋 74 室
表示棟数:
- 1
- 2
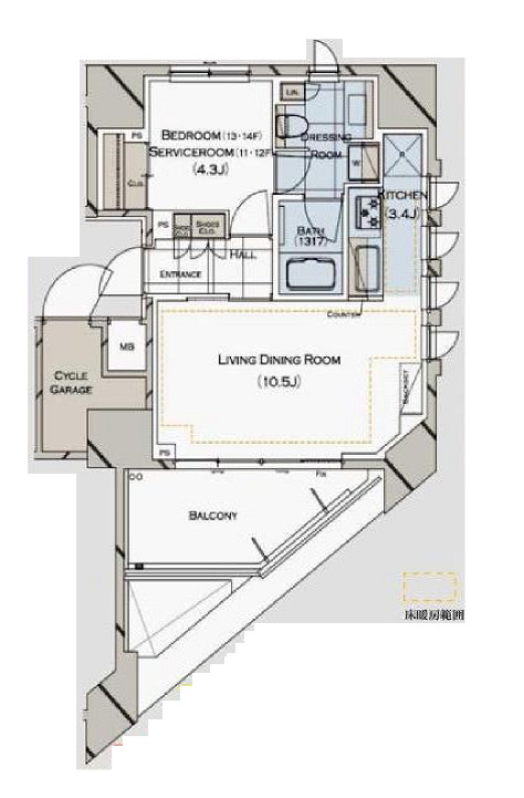
ライトテラス新宿御苑 【04月29日更新】
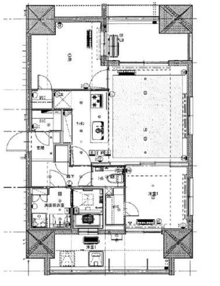
レジディア新宿イーストⅢ 【04月29日更新】
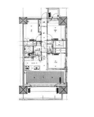
コンフォリア新宿 【04月29日更新】
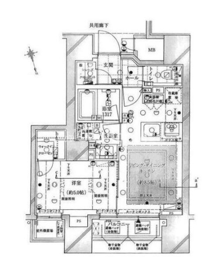
コンフォリア東新宿ステーションフロント 【04月29日更新】
建物
17棟中 11~17棟表示
- 1
- 2
お気に入りに追加しました
お気に入りを解除しました
検索条件を保存しました
会社情報
高級賃貸Pay
(株式会社エスティリンク)
営業時間:10:00~19:00
定休日:(年中無休)
おすすめの物件
-
更新 04/29
- ドゥーエ西麻布Ⅰ・Ⅱ
- 空室:3 部屋
- 面積:62.56m2〜67.18m2
東京メトロ日比谷線
『六本木駅』徒歩12分
間取り:1LDK
賃料:39.0万円〜42.0万円
-
更新 04/29
- ザ・ヒルトップタワー高輪台
- 空室:2 部屋
- 面積:66.44m2〜68.26m2
都営浅草線
『高輪台駅』徒歩1分
間取り:2LDK
賃料:38.0万円〜42.0万円
-
更新 04/29
- パークコート青山ザタワー
- 空室:1 部屋
- 面積:131.00m2
東京メトロ銀座線
『青山一丁目駅』徒歩3分
間取り:3LDK
賃料:180.0万円
-
更新 04/29
- 麻布台ヒルズレジデンス
- 空室:9 部屋
- 面積:38.06m2〜105.78m2
東京メトロ南北線
『六本木一丁目駅』徒歩5分
間取り:1R〜3LDK
賃料:45.5万円〜160.0万円
-
更新 04/29
- ブリリアタワー浜離宮
- 空室:4 部屋
- 面積:25.13m2〜105.77m2
JR山手線
『浜松町駅』徒歩5分
間取り:1DK〜3LDK
賃料:15.0万円〜100.0万円
