田町駅の賃貸物件一覧

建物 31 棟 部屋 95
表示棟数:

フォンテーヌ芝浦 【05月02日更新】

初期費用クレジットカード決済可能

賃料 13.2万円 管理費 8,000円
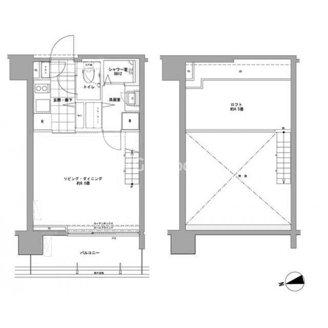
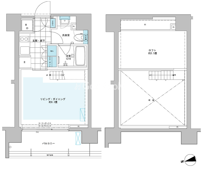
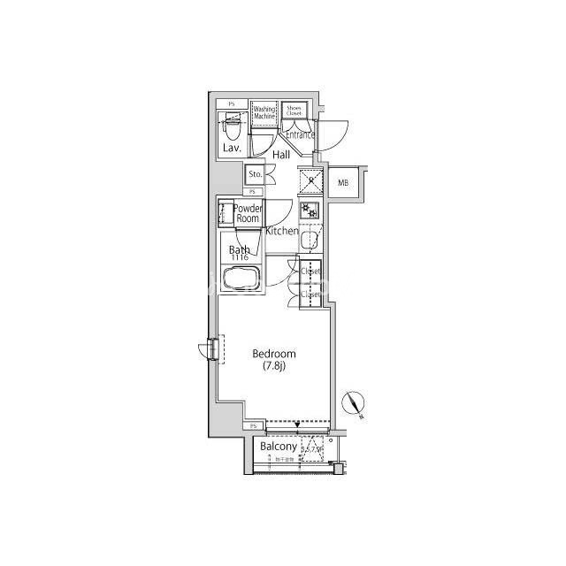
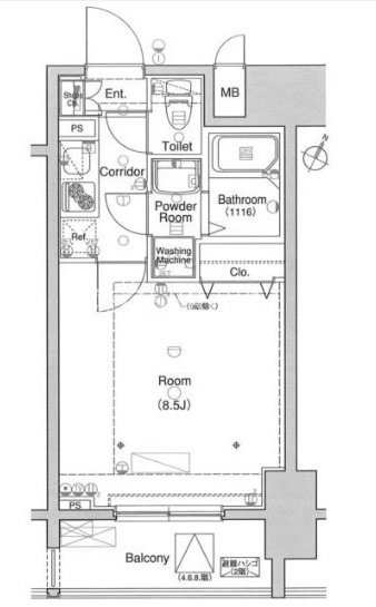
間取り 1K 面積 26.02m2
住所 東京都港区芝浦4-17-7 築年月 2010年2月
交通

JR山手線田町駅』徒歩14

JR京浜東北線田町駅』徒歩14

都営浅草線泉岳寺駅』徒歩11

間取り図 階数 間取り 面積 賃料 管理費 敷金 礼金 お気に入り お問合わせ
1K 14階 1K 26.02m2 13.2万円 8,000円 1.0ヶ月 2.0ヶ月
全ての空室情報を表示 その他-2 閉じる
建物 31棟中  31~31棟表示
お気に入りに追加しました
お気に入りを解除しました
検索条件を保存しました
現在の検索条件
田町駅
こだわりの条件
田町駅
会社情報
高級賃貸Pay

高級賃貸Pay
(株式会社エスティリンク)

営業時間:10:00~19:00

定休日:(年中無休)

03-5468-8899
おすすめの物件