恵比寿駅の賃貸物件一覧

建物 128 棟 部屋 303
表示棟数:

ティアラ恵比寿 【04月22日更新】

初期費用クレジットカード決済可能

賃料 56.5万円 管理費 0円
間取り 2SLDK 面積 86.45m2
住所 東京都渋谷区恵比寿3-1-6 築年月 2003年4月
交通

JR山手線恵比寿駅』徒歩8

東京メトロ日比谷線恵比寿駅』徒歩8

JR埼京線恵比寿駅』徒歩8

JR湘南新宿ライン恵比寿駅』徒歩8

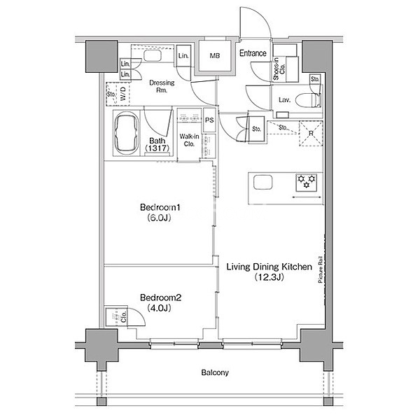
間取り図 階数 間取り 面積 賃料 管理費 敷金 礼金 お気に入り お問合わせ
2SLDK 6階 2SLDK 86.45m2 56.5万円 - 1.0ヶ月 1.0ヶ月
全ての空室情報を表示 その他-2 閉じる
建物 128棟中  92~92棟表示
お気に入りに追加しました
お気に入りを解除しました
検索条件を保存しました
現在の検索条件
恵比寿駅
こだわりの条件
恵比寿駅
会社情報
高級賃貸Pay

高級賃貸Pay
(株式会社エスティリンク)

営業時間:10:00~19:00

定休日:(年中無休)

03-5468-8899
おすすめの物件