賃貸物件一覧

建物 4,245 棟 部屋 15,855
表示棟数:

パークハビオ恵比寿 【05月24日更新】

仲介手数料無料

分譲賃貸

ペット相談

初期費用クレジットカード決済可能

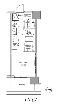
賃料 15.8万円 管理費 10,000円
間取り 1R 面積 25.04m2
住所 東京都渋谷区恵比寿南1-10-7 築年月 2013年11月
交通

JR山手線恵比寿駅』徒歩3

東京メトロ日比谷線恵比寿駅』徒歩2

間取り図 階数 間取り 面積 賃料 管理費 敷金 礼金 お気に入り お問合わせ
1R 5階 1R 25.04m2 15.8万円 10,000円 1.0ヶ月 1.0ヶ月
全ての空室情報を表示 その他-2 閉じる
建物 4,245棟中  4202~4202棟表示
お気に入りに追加しました
お気に入りを解除しました
検索条件を保存しました
現在の検索条件
こだわりの条件
会社情報
高級賃貸Pay

高級賃貸Pay
(株式会社エスティリンク)

営業時間:10:00~19:00

定休日:(年中無休)

03-5468-8899
おすすめの物件