賃貸物件一覧

建物 4,173 棟 部屋 15,793
表示棟数:

オープンレジデンシア高輪台 【04月18日更新】

分譲賃貸

ペット相談

初期費用クレジットカード決済可能

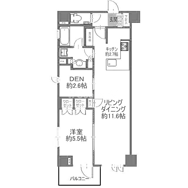
賃料 27.5万円 管理費 10,000円
間取り 1SLDK 面積 49.98m2
住所 東京都品川区東五反田4-6-10 築年月 2015年9月
交通

都営浅草線高輪台駅』徒歩4

JR山手線五反田駅』徒歩9

JR山手線品川駅』徒歩14

東京メトロ南北線白金台駅』徒歩14

間取り図 階数 間取り 面積 賃料 管理費 敷金 礼金 お気に入り お問合わせ
1SLDK 3階 1SLDK 49.98m2 27.5万円 10,000円 1.0ヶ月 1.0ヶ月
全ての空室情報を表示 その他-2 閉じる
建物 4,173棟中  4051~4051棟表示
お気に入りに追加しました
お気に入りを解除しました
検索条件を保存しました
現在の検索条件
こだわりの条件
会社情報
高級賃貸Pay

高級賃貸Pay
(株式会社エスティリンク)

営業時間:10:00~19:00

定休日:(年中無休)

03-5468-8899
おすすめの物件