賃貸物件一覧

建物 3,792 棟 部屋 14,423
表示棟数:

コンフォリア西麻布 【04月23日更新】

仲介手数料無料

礼金ゼロ

初期費用クレジットカード決済可能

賃料 23.7万円 管理費 10,000円
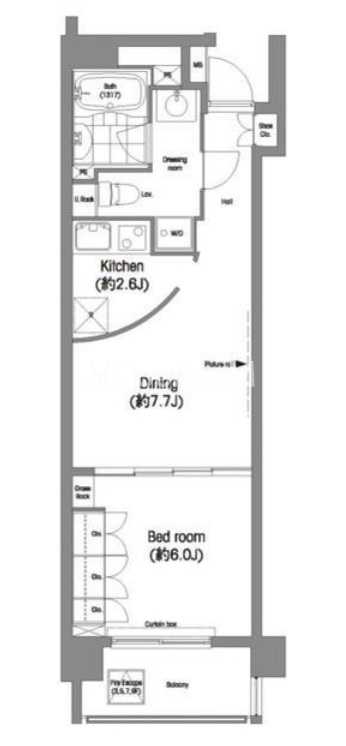
間取り 1LDK 面積 39.38m2
住所 東京都港区西麻布4-1-10 築年月 2002年9月
交通

東京メトロ日比谷線広尾駅』徒歩9

東京メトロ日比谷線六本木駅』徒歩11

東京メトロ千代田線乃木坂駅』徒歩10

間取り図 階数 間取り 面積 賃料 管理費 敷金 礼金 お気に入り お問合わせ
1LDK 3階 1LDK 39.38m2 23.7万円 10,000円 1.0ヶ月 0.0ヶ月
全ての空室情報を表示 その他-2 閉じる
建物 3,792棟中  3010~3010棟表示
お気に入りに追加しました
お気に入りを解除しました
検索条件を保存しました
現在の検索条件
こだわりの条件
会社情報
高級賃貸Pay

高級賃貸Pay
(株式会社エスティリンク)

営業時間:10:00~19:00

定休日:(年中無休)

03-5468-8899
おすすめの物件