賃貸物件一覧

建物 3,788 棟 部屋 14,361
表示棟数:

KDXレジデンス宮前平 【04月28日更新】

仲介手数料無料

初期費用クレジットカード決済可能

賃料 14.3万円 ~ 15.2万円 管理費 8,000円
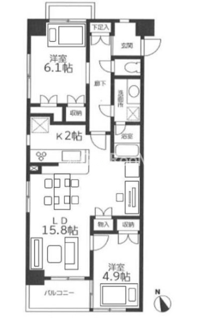
間取り 2LDK 面積 60.42m2
住所 神奈川県川崎市宮前区宮前平3-14-3 築年月 1998年10月
交通

東急田園都市線宮前平駅』徒歩8

東急田園都市線宮崎台駅』徒歩10

間取り図 階数 間取り 面積 賃料 管理費 敷金 礼金 お気に入り お問合わせ
2LDK 1階 2LDK 60.42m2 14.3万円 8,000円 1.0ヶ月 1.0ヶ月
2LDK 3階 2LDK 60.42m2 15.2万円 8,000円 1.0ヶ月 1.0ヶ月
全ての空室情報を表示 その他-1 閉じる
建物 3,788棟中  293~293棟表示
お気に入りに追加しました
お気に入りを解除しました
検索条件を保存しました
現在の検索条件
こだわりの条件
会社情報
高級賃貸Pay

高級賃貸Pay
(株式会社エスティリンク)

営業時間:10:00~19:00

定休日:(年中無休)

03-5468-8899
おすすめの物件