賃貸物件一覧

建物 3,846 棟 部屋 14,314
表示棟数:

ザ・パークハウス早稲田 【04月29日更新】

分譲賃貸

ペット相談

初期費用クレジットカード決済可能

賃料 48.0万円 管理費 0円
間取り 2SLDK 面積 70.91m2
住所 東京都新宿区戸山3-1-1 築年月 2020年5月
交通

東京メトロ東西線早稲田駅』徒歩6

東京メトロ副都心線西早稲田駅』徒歩9

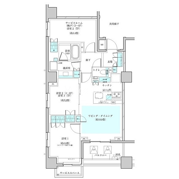
間取り図 階数 間取り 面積 賃料 管理費 敷金 礼金 お気に入り お問合わせ
2SLDK 6階 2SLDK 70.91m2 48.0万円 - 1.0ヶ月 1.0ヶ月
全ての空室情報を表示 その他-2 閉じる
建物 3,846棟中  2823~2823棟表示
お気に入りに追加しました
お気に入りを解除しました
検索条件を保存しました
現在の検索条件
こだわりの条件
会社情報
高級賃貸Pay

高級賃貸Pay
(株式会社エスティリンク)

営業時間:10:00~19:00

定休日:(年中無休)

03-5468-8899
おすすめの物件