低層マンションの賃貸物件一覧

建物 581 棟 部屋 1,623
表示棟数:

アリウェイ戸越 【04月28日更新】

分譲賃貸

初期費用クレジットカード決済可能

賃料 13.6万円 管理費 4,000円
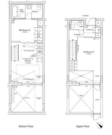
間取り 1LDK 面積 43.26m2
住所 東京都品川区戸越1-23 築年月 2014年11月
交通

都営浅草線戸越駅』徒歩5

東急池上線戸越銀座駅』徒歩7

JR山手線大崎駅』徒歩9

間取り図 階数 間取り 面積 賃料 管理費 敷金 礼金 お気に入り お問合わせ
1LDK 0階 1LDK 43.26m2 13.6万円 4,000円 1.0ヶ月 1.0ヶ月
全ての空室情報を表示 その他-2 閉じる
建物 581棟中  560~560棟表示
お気に入りに追加しました
お気に入りを解除しました
検索条件を保存しました
現在の検索条件
こだわりの条件
建物特徴 低層マンション
会社情報
高級賃貸Pay

高級賃貸Pay
(株式会社エスティリンク)

営業時間:10:00~19:00

定休日:(年中無休)

03-5468-8899
おすすめの物件