低層マンションの賃貸物件一覧

建物 581 棟 部屋 1,623
表示棟数:

コンシェリア馬込テラス 【04月28日更新】

分譲賃貸

ペット相談

初期費用クレジットカード決済可能

賃料 8.8万円 管理費 12,000円
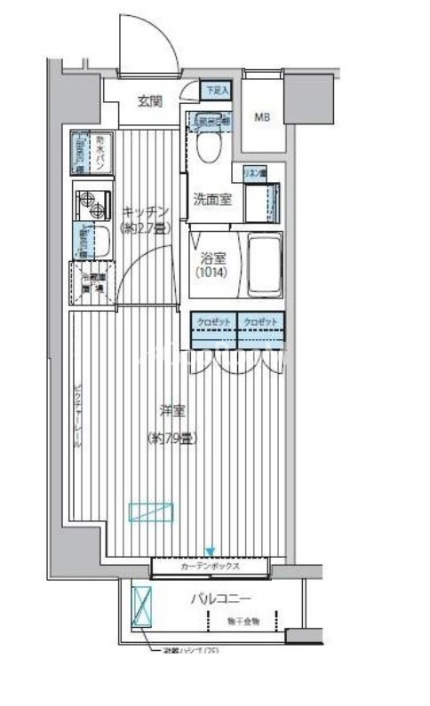
間取り 1K 面積 26.10m2
住所 東京都大田区中馬込3-17-16 築年月 2014年3月
交通

都営浅草線西馬込駅』徒歩9

都営浅草線馬込駅』徒歩12

東急大井町線荏原町駅』徒歩19

間取り図 階数 間取り 面積 賃料 管理費 敷金 礼金 お気に入り お問合わせ
1K 3階 1K 26.1m2 8.8万円 12,000円 1.0ヶ月 1.0ヶ月
全ての空室情報を表示 その他-2 閉じる
建物 581棟中  552~552棟表示
お気に入りに追加しました
お気に入りを解除しました
検索条件を保存しました
現在の検索条件
こだわりの条件
建物特徴 低層マンション
会社情報
高級賃貸Pay

高級賃貸Pay
(株式会社エスティリンク)

営業時間:10:00~19:00

定休日:(年中無休)

03-5468-8899
おすすめの物件