分譲賃貸の賃貸物件一覧

建物 1,557 棟 部屋 3,158
表示棟数:

南青山パークハウス 【04月17日更新】

分譲賃貸

ペット相談

初期費用クレジットカード決済可能

賃料 65.0万円 管理費 0円
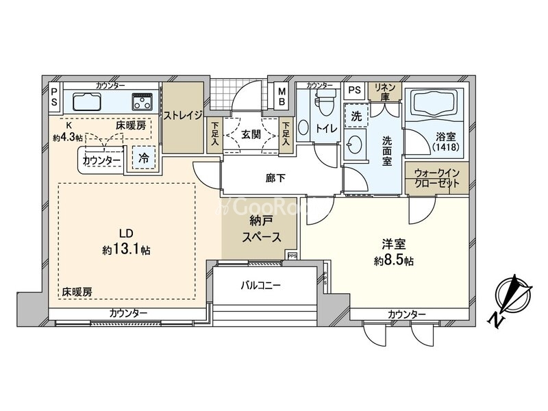
間取り 2LDK 面積 88.07m2
住所 東京都港区南青山6-10-7 築年月 2009年12月
交通

東京メトロ銀座線表参道駅』徒歩10

JR山手線渋谷駅』徒歩15

東京メトロ千代田線乃木坂駅』徒歩16

東京メトロ半蔵門線表参道駅』徒歩10

東京メトロ千代田線表参道駅』徒歩10

間取り図 階数 間取り 面積 賃料 管理費 敷金 礼金 お気に入り お問合わせ
2LDK 5階 2LDK 88.07m2 65.0万円 - 1.0ヶ月 1.0ヶ月
全ての空室情報を表示 その他-2 閉じる
建物 1,557棟中  1554~1554棟表示
お気に入りに追加しました
お気に入りを解除しました
検索条件を保存しました
現在の検索条件
こだわりの条件
建物特徴 分譲賃貸
会社情報
高級賃貸Pay

高級賃貸Pay
(株式会社エスティリンク)

営業時間:10:00~19:00

定休日:(年中無休)

03-5468-8899
おすすめの物件