賃貸物件一覧

建物 4,587 棟 部屋 16,923
表示棟数:

パークアクシス明治神宮前 【04月25日更新】

仲介手数料無料

初期費用クレジットカード決済可能

賃料 35.0万円 管理費 15,000円
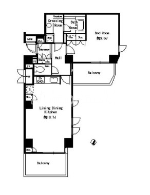
間取り 1LDK 面積 62.32m2
住所 東京都渋谷区神宮前1-10-11 築年月 2002年3月
交通

東京メトロ千代田線明治神宮前駅』徒歩3

JR山手線原宿駅』徒歩3

東京メトロ半蔵門線表参道駅』徒歩10

東京メトロ副都心線明治神宮前駅』徒歩3

間取り図 階数 間取り 面積 賃料 管理費 敷金 礼金 お気に入り お問合わせ
1LDK 2階 1LDK 62.32m2 35.0万円 15,000円 1.0ヶ月 1.0ヶ月
全ての空室情報を表示 その他-2 閉じる
建物 4,587棟中  3515~3515棟表示
お気に入りに追加しました
お気に入りを解除しました
検索条件を保存しました
現在の検索条件
こだわりの条件
会社情報
高級賃貸Pay

高級賃貸Pay
(株式会社エスティリンク)

営業時間:10:00~19:00

定休日:(年中無休)

03-5468-8899
おすすめの物件