賃貸物件一覧

建物 4,553 棟 部屋 16,522
表示棟数:

アルテシモカルド 【04月29日更新】

分譲賃貸

ペット相談

初期費用クレジットカード決済可能

賃料 11.0万円 管理費 15,000円
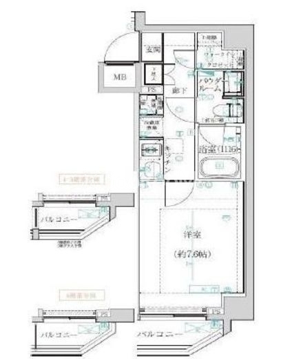
間取り 1K 面積 26.38m2
住所 東京都墨田区業平3-7-4 築年月 2019年8月
交通

東京メトロ半蔵門線押上駅』徒歩3

京成押上線押上駅』徒歩3

東武伊勢崎線スカイツリー駅』徒歩10

間取り図 階数 間取り 面積 賃料 管理費 敷金 礼金 お気に入り お問合わせ
1K 2階 1K 26.38m2 11.0万円 15,000円 1.0ヶ月 1.0ヶ月
全ての空室情報を表示 その他-2 閉じる
建物 4,553棟中  3411~3411棟表示
お気に入りに追加しました
お気に入りを解除しました
検索条件を保存しました
現在の検索条件
こだわりの条件
会社情報
高級賃貸Pay

高級賃貸Pay
(株式会社エスティリンク)

営業時間:10:00~19:00

定休日:(年中無休)

03-5468-8899
おすすめの物件