目黒駅の賃貸物件一覧

建物 31 棟 部屋 73
表示棟数:

パークタワー目黒 【04月25日更新】

分譲賃貸

ペット相談

初期費用クレジットカード決済可能

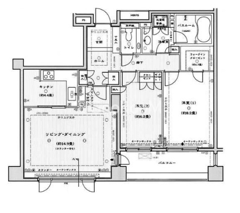
賃料 55.0万円 管理費 0円
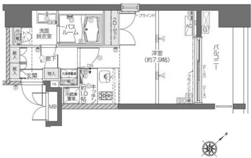
間取り 2LDK 面積 70.75m2
住所 東京都品川区上大崎4-1-1 築年月 2007年11月
交通

JR山手線目黒駅』徒歩1

東京メトロ南北線目黒駅』徒歩1

都営三田線目黒駅』徒歩1

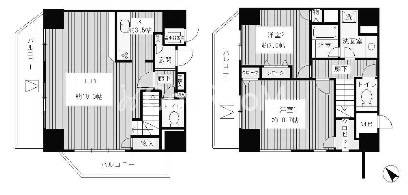
間取り図 階数 間取り 面積 賃料 管理費 敷金 礼金 お気に入り お問合わせ
2LDK 21階 2LDK 70.75m2 55.0万円 - 2.0ヶ月 1.0ヶ月
全ての空室情報を表示 その他-2 閉じる
建物 31棟中  31~31棟表示
お気に入りに追加しました
お気に入りを解除しました
検索条件を保存しました
現在の検索条件
目黒駅
こだわりの条件
目黒駅
会社情報
高級賃貸Pay

高級賃貸Pay
(株式会社エスティリンク)

営業時間:10:00~19:00

定休日:(年中無休)

03-5468-8899
おすすめの物件