横浜駅の賃貸物件一覧

建物 8 棟 部屋 23
表示棟数:

ザ・ヨコハマフロントタワー 【05月29日更新】

分譲賃貸

新築/築浅

ペット相談

初期費用クレジットカード決済可能

賃料 39.0万円 管理費 30,000円
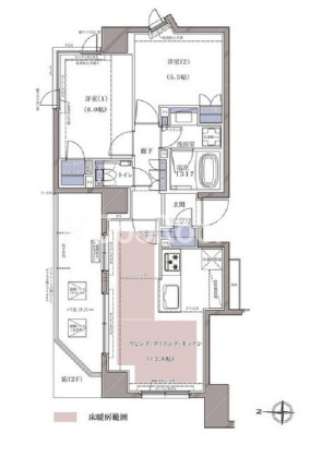
間取り 2LDK 面積 55.48m2
住所 神奈川県横浜市神奈川区鶴屋町1-41-42 築年月 2024年3月
交通

JR京浜東北線横浜駅』徒歩3

東急東横線横浜駅』徒歩3

JR湘南新宿ライン横浜駅』徒歩3

JR横須賀線』徒歩3

間取り図 階数 間取り 面積 賃料 管理費 敷金 礼金 お気に入り お問合わせ
2LDK 34階 2LDK 55.48m2 39.0万円 30,000円 1.0ヶ月 1.0ヶ月
全ての空室情報を表示 その他-2 閉じる
建物 8棟中  7~7棟表示
お気に入りに追加しました
お気に入りを解除しました
検索条件を保存しました
現在の検索条件
横浜駅
こだわりの条件
横浜駅
会社情報
高級賃貸Pay

高級賃貸Pay
(株式会社エスティリンク)

営業時間:10:00~19:00

定休日:(年中無休)

03-5468-8899
おすすめの物件