初台駅の賃貸物件一覧
建物 55 棟
部屋 127 室
表示棟数:
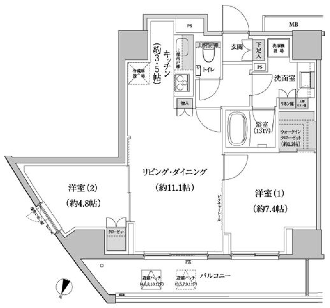
パークハビオ渋谷本町レジデンス 【04月22日更新】
お気に入りに追加しました
お気に入りを解除しました
検索条件を保存しました
会社情報
高級賃貸Pay
(株式会社エスティリンク)
営業時間:10:00~19:00
定休日:(年中無休)
おすすめの物件
-
更新 04/22
- コスモポリス品川
- 空室:3 部屋
- 面積:55.35m2〜89.92m2
JR山手線
『品川駅』徒歩10分
間取り:1LDK〜2SLDK
賃料:24.0万円〜41.0万円
-
更新 04/22
- 白金ザ・スカイ
- 空室:13 部屋
- 面積:24.04m2〜96.13m2
東京メトロ南北線
『白金高輪駅』徒歩3分
間取り:1R〜3LDK
賃料:22.0万円〜96.0万円
-
更新 04/22
- 三田ガーデンヒルズ
- 空室:18 部屋
- 面積:29.34m2〜120.89m2
東京メトロ南北線
『麻布十番駅』徒歩5分
間取り:1R〜3LDK
賃料:30.0万円〜210.0万円
-
更新 04/22
- 六本木ヒルズレジデンス
- 空室:1 部屋
- 面積:133.58m2
東京メトロ日比谷線
『六本木駅』徒歩4分
間取り:3LDK
賃料:140.0万円
-
更新 04/22
- シーリアお台場一番街
- 空室:3 部屋
- 面積:38.61m2〜87.01m2
ゆりかもめ
『お台場海浜公園駅』徒歩9分
間取り:1K〜3LDK
賃料:13.0万円〜31.5万円
